產品工作原理和用途:
Q347偏心半球閥利用偏心閥體,偏心球體和閥座,閥桿作旋轉運動時在共同軌跡自動定心,關閉過程中越關越緊,完全達到良好的密封目的。閥門的球體和閥座完全脫離,消除了密封圈的磨損,克服了傳統球體閥座與球體密封面始終磨損的問題,非金屬彈性材料被嵌入金屬座中,閥座金屬面受到良好的保護。本產品特別適用于鋼鐵業,鋁業,纖維,微小固體顆粒,紙漿,煤灰,石油氣等介質。
產品結構特點:
1、其結構采用偏心契緊原理通過傳動機構達到閘緊、調節、關閉的目的,密封副是金屬面環帶硬面接觸密封,雙偏心結構在開啟時閥芯位于藏球室內,流通截面大,且閥門不被沖刷,關閉時閥芯不被沖刷,開啟時閥芯球面沿閥座漸進,有效地切除結垢障礙,實現可靠密封。它對兩相混流易結垢固體析出的混流輸送特別有效。
2、閥門的半球用雙金屬,母材上堆焊不同的合金,閥座也作相應堆焊經特殊的處理,密封面組合成防腐、耐磨、較強度等各種類型,滿足不同場合需求。
3、密封嚴密、輸送有害氣體可達零泄露。
4、密封副的閥芯留有補償量、當閥做磨損后,關閉時再轉動少許,任能可靠密封,延長了使用壽命。此外,用戶將壓緊螺母擰掉,調整或更換后閥座仍可用,避免了閥門密封失效后,整臺報廢的弊端。
產品性能參數:
公稱壓力(Mpa) | 0.6 | 1.0 | 1.6 | 2.5 | 4.0 |
公稱通經(mm) | 40-1600 | 40-1600 | 40-1200 | 40-600 | 40-600 |
密封試驗壓力(Mpa) | 0.66 | 1.1 | 1.76 | 2.75 | 4.4 |
殼體試驗壓力(Mpa) | 0.9 | 1.5 | 2.4 | 3.75 | 6.0 |
適用溫度(℃) | -29~300、-29~425、-29~540 |
適用介質 | 清水、海水、污水、酸堿等液體、料漿、蒸汽、燃氣、油類 |
驅動方式 | 手動、電動、氣動 |
連接形式 | 法蘭連接、對夾連接 |
安裝方式 | 立式安裝、臥式安裝 |
產品主要零件材料:
名稱 | 材質 |
閥體 | QT450、WCB、ZG20CrMo、ZG1Cr18Ni9Ti |
閥軸 | 2Cr13、1Cr13 |
閥瓣 | 合金滲氮鋼、滲氮不銹鋼、耐磨鋼 |
閥座 | 合金滲氮鋼、滲氮不銹鋼、耐磨鋼 |
軸承 | 鋁青銅、FZ-1復合材料 |
填料 | 聚四氟乙烯、柔性石墨 |

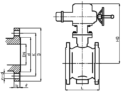
產品主要尺寸:
公稱壓力 PN/Mpa | 公稱通徑 DN/mm | 尺寸 (mm) |
L | D | K | d | f | C | Z-¢d | H |
1.6 | 40 | 165 | 150 | 110 | 85 | 3 | 16 | 4-¢18 |
|
50 | 178 | 165 | 125 | 100 |
|
65 | 190 | 185 | 145 | 120 | 18 | 280 |
80 | 203 | 200 | 160 | 135 | 20 | 8-¢18 | 320 |
100 | 229 | 220 | 180 | 155 | 370 |
125 | 254 | 250 | 210 | 185 | 22 | 430 |
150 | 267 | 285 | 240 | 210 | 24 | 8-¢23 | 510 |
200 | 292 | 340 | 295 | 265 | 26 | 12¢-23 | 600 |
250 | 330 | 405 | 355 | 320 | 30 | 12-¢26 | 690 |
300 | 502 | 460 | 410 | 375 | 4 | 760 |
350 | 572 | 520 | 470 | 435 | 34 | 16-¢26 | 830 |
400 | 610 | 580 | 525 | 485 | 36 | 16-¢30 | 925 |
450 | 660 | 640 | 585 | 545 | 40 | 20-¢30 | 1025 |
500 | 700 | 715 | 650 | 608 | 44 | 20-¢34 | 1120 |
600 | 813 | 840 | 770 | 718 | 5 | 48 | 20-¢36 | 1210 |